• Architecture
  • Strategy
  • Construction
  • Art
  • About
  • CV

Matthew Burnett

  • Architecture
  • Strategy
  • Construction
  • Art
  • About
  • CV

Collaborate - Future Cambodia

IMG_0296.jpg
Burnett_Matthew_Praxis.jpg
Ventilation.jpg
Site Plan.jpg
IMG_0294.jpg
IMG_0295.jpg
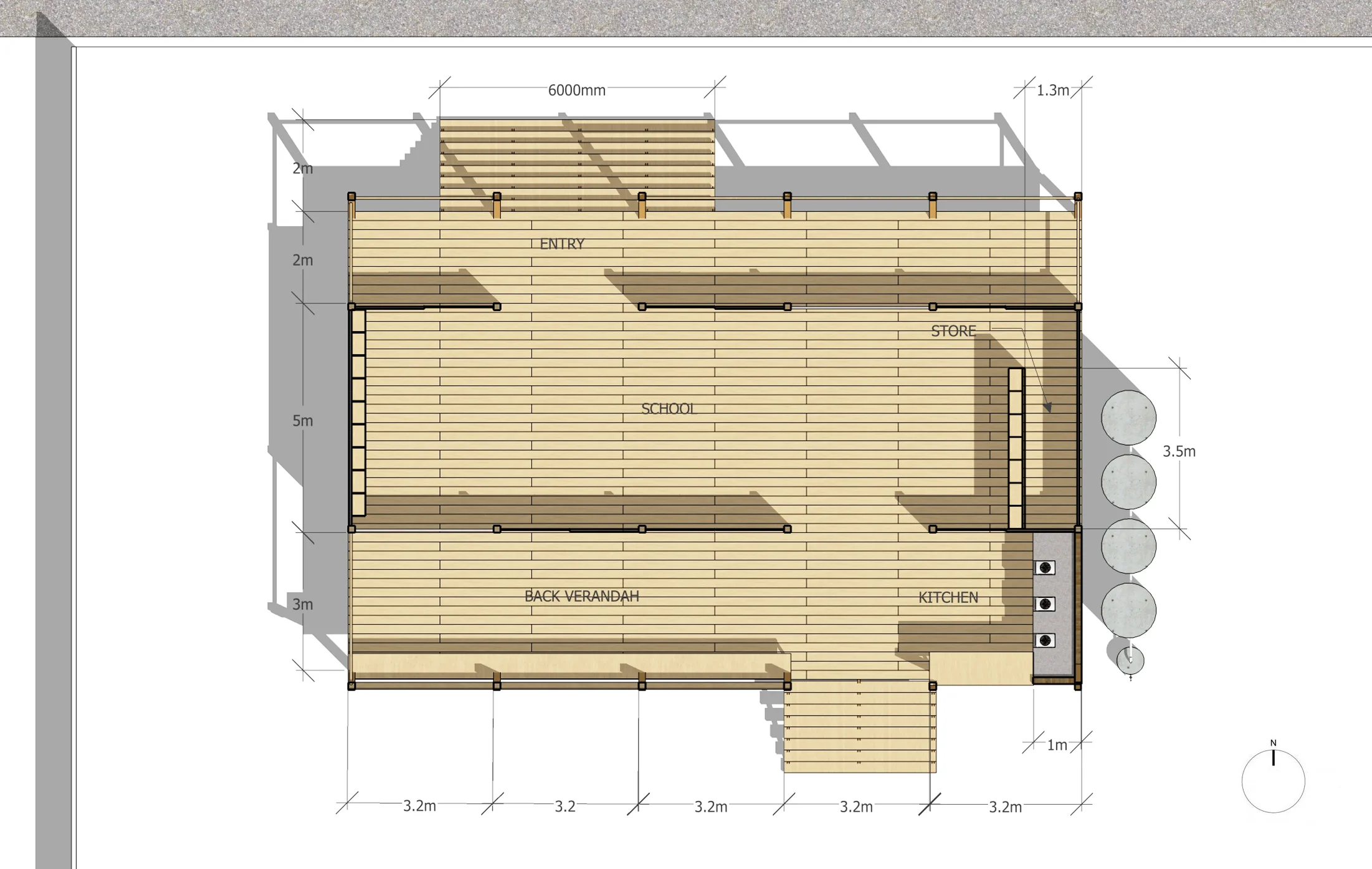
Floorplan.jpg
IMG_0293.jpg
IMG_0292.jpg
IMG_0297.jpg
IMG_0300.jpg
IMG_0303.jpg
IMG_0301.jpg
IMG_0302.jpg
IMG_0299.jpg
IMG_0298.jpg
IMG_0304.jpg
IMG_0305.jpg
Wing Wall Ventilation.jpg
Summer (Wet).jpg
Winter (Dry).jpg
Exploded.jpg