• Architecture
  • Strategy
  • Construction
  • Art
  • About
  • CV

Matthew Burnett

  • Architecture
  • Strategy
  • Construction
  • Art
  • About
  • CV

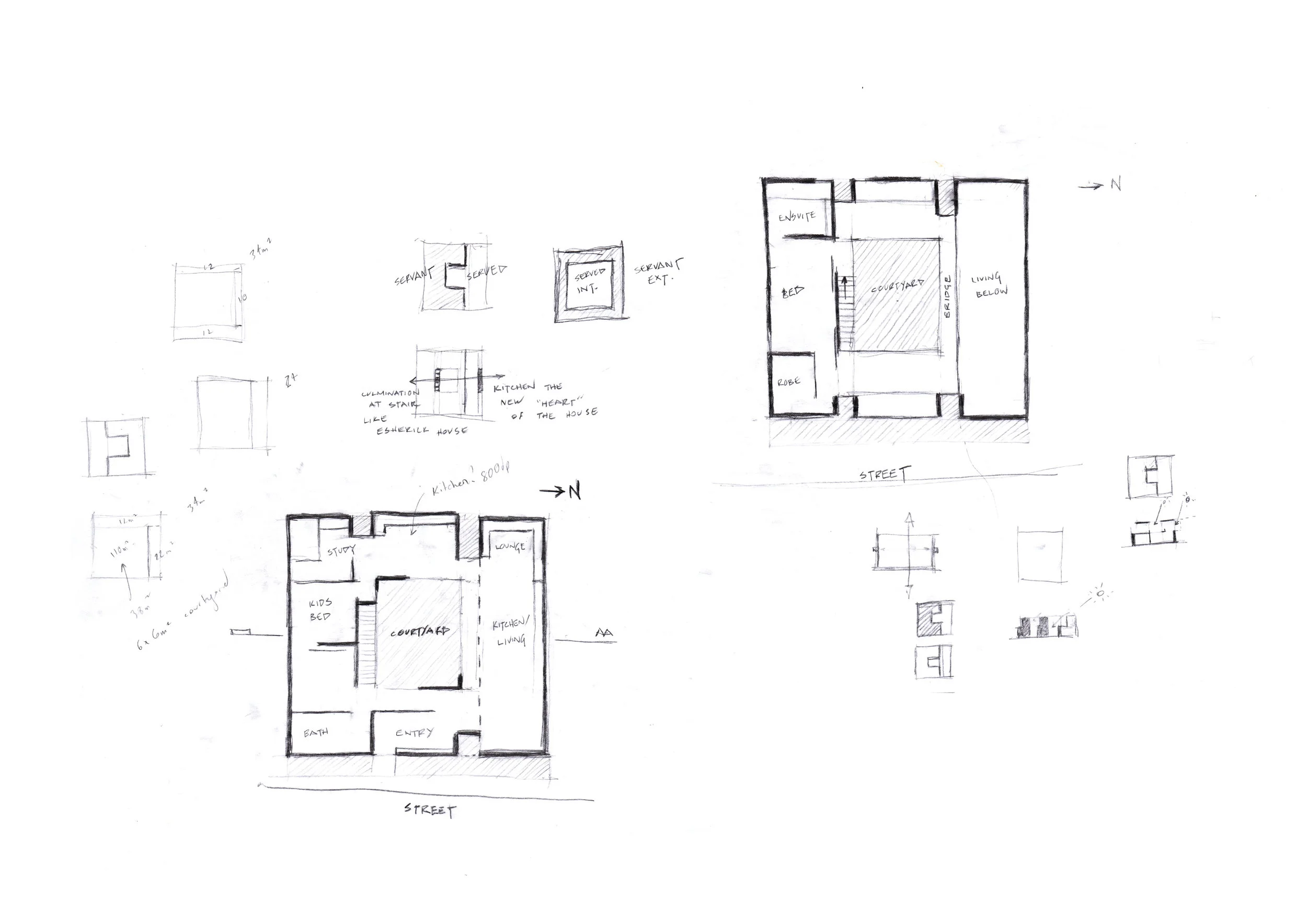
Courtyard House

 

Project 1 - Design Studio 5 // UNSW - 3rd Year.

 
Project1_Web13.jpg
Project1_Web15.jpg
Project1_Web16.jpg
Project1_Web17.jpg
Project1_Web18.jpg
Project1_Web19.jpg
Project1_Web12.jpg
Project1_Web7.jpg
Project1_Web8.jpg
Project1_Web9.jpg
Project1_Web10.jpg
Project1_Web5.jpg
Project1_Web6.jpg
Project1_Web11.jpg
Project1_Web2.jpg
Project1_Web3.jpg
Project1_Web4.jpg